تخطى إلى المحتوى الرئيسي
اسم المستخدم
كلمة المرور
تسجيل الدخول
Forgotten your username or password?
USMT
📅 Moodle par année
Consultez les cours de l'année académique 2025/2026
Consultez les cours de l'année académique 2024/2025
Consultez les cours de l'année académique 2023/2024
CILT
العربية (ar)
English (en)
Français (fr)
العربية (ar)
البحث في المقررات الدراسية
تسليم
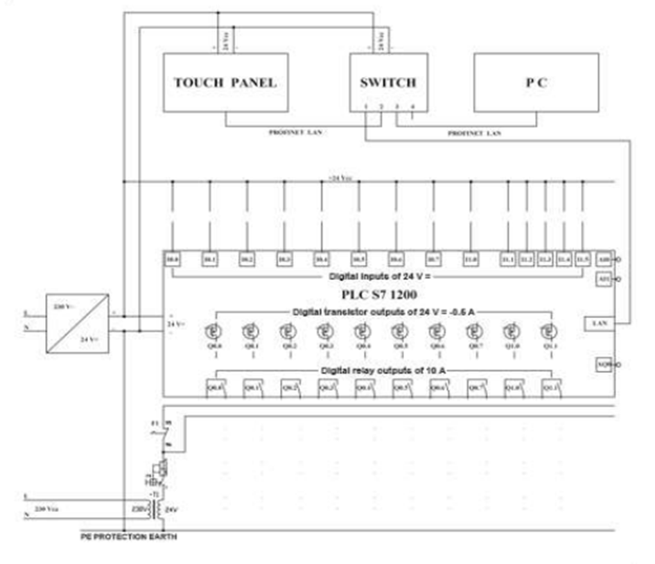
TP Automatismes / TP Matériaux et introduction à la HT
TP 3 Industrial Automation (TIMER_TON_TOF)
آخر تعديل: الاثنين، 17 فبراير 2025، 10:50 AM
► TP3 TOMPORISATION STEP 7
الانتقال إلى...
الانتقال إلى...
Annonces
TP1 configuration projet S7 300
TP1 Industrial Automation (Project Configuration S7 1200)
TP02 Automatisme Industriels
TP2 ELECTRICAL SYSTEM
TP3 TOMPORISATION STEP 7
TP 4 Industrial Automation (COUNTER)
TP4 Automatisme Industriels step7
Charger un programme de l’automate dans le PC
programmer STEP 7 5 langage a contacte (ladder) ET langage Grafcet
COMPTE RENDU TP
TP 4 Industrial Automation (COUNTER) ◄
العودة